
私がアリス(ジャックラッセルテリア/2017年生まれ/女の子)とこの家で暮らし始めて、およそ1年半が経ちました。こんな家です。おおよその計画の有効性や理論の検証、実験ができましたので、猫の場合と同じように数回に分けて解説をしていこうと思います。
part1ではアリスの生活の中心になっている1階の間取りと、犬のために工夫した部分の紹介、そして各階の床材の紹介をします。
アリスに関しては、JAHAの家庭犬マナーチャレンジ上級編に☆☆☆合格できるまでトレーニングを積んできましたので、家の中で困ったことは起きない前提でプランを考えていますが、犬種がジャックラッセルテリア故に身体能力が非常に高いため、いろんな場面を想定し慎重な設計を建設地の選定段階からしています。また、サークル内で行動を管理するような犬との暮らし方や、ケージを家の中に置くことを私は好んでいませんので、1階のリビング・ダイニングルーム全体がアリスの居場所になっています。日中の半分はリビングのソファーの上で寝たりフリーの状態でうろうろしたりして過ごし、3時ごろからは2階のアトリエに運ばれて散歩の待機。夜は寝室で一緒に寝るのが家の中でのルーティンです。

犬と暮らす家を考える場合、まず初めに決めておくのは立ち入り禁止ゾーンです。「和室には犬を入れない」と決めたのなら、そのようなしつらえにしますし、靴で遊んでしまう習慣がついてしまった子には絶対に中に入れないシューズインクロゼットを設えるのがいいでしょう。そうはいうものの、私は長年の住まい方調査で、散らかり放題で機能していないシューズインクロゼットや、その半分も靴のために使われていない巨大な下駄箱収納を何度も見ていますし、私自身が大の靴好きなので、自分の家には下駄箱やシューズインクロゼットを設けないと決めていました。普段履きのスニーカーなどは玄関のベンチの下に10足程度置くことができますが、皮靴は毎日手入れをしたいので、すぐに収納してしまうような環境を用意せず、靴は洋服と同様の扱いで、家族が各自、自分の部屋に運ぶ方式にしています。
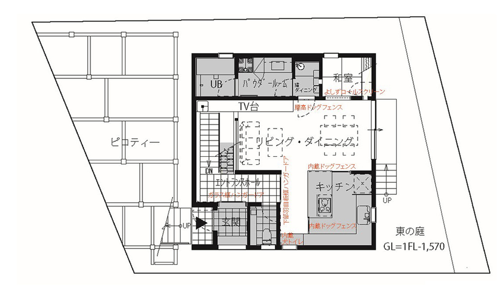
それでは、1階の間取り図(平面図)を見ていきましょう。このページの図面は猫に関する部分を省略して見やすくしています。グレーに着色してある部屋が犬の進入禁止ゾーンです。オレンジ色の文字は犬のために工夫をした部分を示しています。

まず、セオリーとして、犬の居場所から玄関土間に至るまでに2枚のドアを設けるようにします。その理由はこのリンクから読めるコラムに書きました。ポストマン・シンドロームとバッファーゾーンの話です。ここではエントランスホールに2枚のドアがあり、横に長い(通り芯3.64m=2間)エントランスホールがバッファーゾーンを形成しています。

リビングルームへの入り口には上の写真の正面に写っている大きい建具を入れています。天井まであるハンガードアで、下半分がメープル材の羽目板、上部はモールガラスを使いました。できるだけ他のドアより面白みのあるものにした方がメリハリがついてデザインがまとまりやすくなります。
犬の話に戻りますが、犬の目線からはこのドアの向こう側(バッファーゾーンにあたる玄関ホール)の様子は一切見えません。でも、人間の目の高さなら、モールガラス越しにぼんやりと見えるので、「おかえり」の瞬間がわかるようになっています。
一般にキッチンに犬を入れたくない場合には市販のドッグフェンスを取り付けることが多いようですが、最近流行のアイランド型キッチンだとドッグフェンスを取り付けることができません。それでも私はアイランド型キッチンにこだわりがあったので、ドッグフェンスをキッチンの一部として設計しました。普段は開放しておき、調理中だけ危険ですからドッグフェンスを閉めるようにしています。メインの入り口はスライド式のもの。収納が多い方の入り口には180度スウィングする扉をキッチンの面材で造って、ドッグフェンスを使わないときには目立たないようにしています。


キッチンをオリジナルで製作すると決めたので、そこに調理以外のたくさんの機能を付加しています。図面の中に「内蔵犬トイレ」の文字が見つかると思いますが、キッチンのカウンターと吊戸棚をキッチンエリアの外側にまで拡張して、キッチンの部材、面材で犬のトイレとルンバの格納庫、犬のキャリー置き場をつくりました。それが下の写真です。犬のトイレは造りつけのペットシーツトレイのようになるわけですが、底板と背板を人工大理石にして清掃性を高め、黒い樹脂メッシュを用いてペットシーツを押さえているので、一見するだけでは犬のトイレに見えません。そして24時間換気扇を取り付けていますから臭いの問題もありません。(アリスは排便を屋外でしかしないのでこのような手法をとっています)

アリスは基本的には家の中でフリーにしていますので、入ってはいけない場所を判断させるヒントが必要です。例えば和室ですが、犬は中に入れないことにしているので、床を1段あげて、よしずのロールスクリーンを取り付けています。そのような犬にとっての物的なヒントや、行動を起こす前に立ち止まる「間合い」があれば、入ってはいけないことを教えやすくなります。そもそも、そこに入るメリットが何もなければ、犬は入らなくなります。猫との違いが顕著にあらわれる部分です。

明らかに犬にとって興味を引くものがある場所を「進入禁止」にするのは難しいものです。留守の時を考えると、それは無理だといえますし、そもそも犬に侵入を奮起させるような場があることがおかしいのです。ただ、パウダールーム(洗面所)はいろんな匂いがするので興味を持ってしまうでしょう。その場合は猫のときと同じで、ドアに両面サムターン鍵を付けます。しかし、犬が猫と一緒に暮らす場合には、どうしようもなく犬にとって魅力的な場が生まれてしまいます。それは、猫のトイレ、猫の食事場所です。ドッグフェンスで行けないようにすればいいのですが、初めから、それらがあることがわかっている場合には、建築の建具工事で部屋のインテリアを乱さないドッグフェンスを作ることができます。計画がしっかりしていれば、後付の見苦しい市販のフェンスを使わなくても済みます。

犬に適した床材を考えるときには、これからは、人の安全にかかわる施設設計の指針と同じように、床の滑りの評価指標である「滑り抵抗係数(C.S.R:Coefficient of Slip Resistance)」をカタログで参照するようになるとおもいます。ただ、住宅の中に、明らかに滑らない建材のルックスを持ち込むのはどうだろうか?とか、C.S.Rの測定がそもそもなされていない床材をどのようにあつかうか?という疑問に対しては、実際に犬に候補の床材の上に座らせてみる事が、一番手っ取り早い答えだと思います。
1階の床材に使っているのは、昔から私が使っている重歩行用500角塩ビタイルです。実物をメーカーからもらって実際に「おすわり(sit)」の状態にして、脚が横に流れていかないかを確かめます。
リビングルームのようなくつろぐための場所に塩ビタイルを用いることに抵抗がある方も多いでしょうが、動物の滞在時間が長い場所には重歩行用500角塩ビタイルをおすすめしています。なぜなら、ラグマットを敷くので、実際に見えている部分は少ないからです。あとは、動物の粗相があった場合にダメージが少なくて済みます。

寝室がある地下階(地階にある住宅の容積緩和適用)の床にはコルクタイルを使っています。これも古くから犬が走っても滑らないことで知られている素材です。ただし、これも現物を確認しましょう。表面のコーティングで価格も滑りにくさも変わってきます。

2階は私のアトリエや応接間として使っていて、土足にしています。ですから、床材は土足用のフローリングで、ウォールナットの4mm厚の曳板を用いた3層フローリングです。当たり前のことですが、土足用のフローリングで犬の脚がツルツル滑るなんてことはありません。フローリングが滑る問題の根本は、日本人の生活様式に合わせて開発されたフローリング調床材がフローリングとして流通していることにあると思います。

part1はここまで(2022.08.09)
犬と暮らす家・猫と暮らす家の専門家による自邸の解説(猫編)は以下のリンクから