猫と暮らす家



■2階にある猫の運動場(PlayRoom)です。キャットツリーはキャットウォークに登るための猫専用らせん階段。 廊下も兼ねたこの場所は、この家の中心部です。

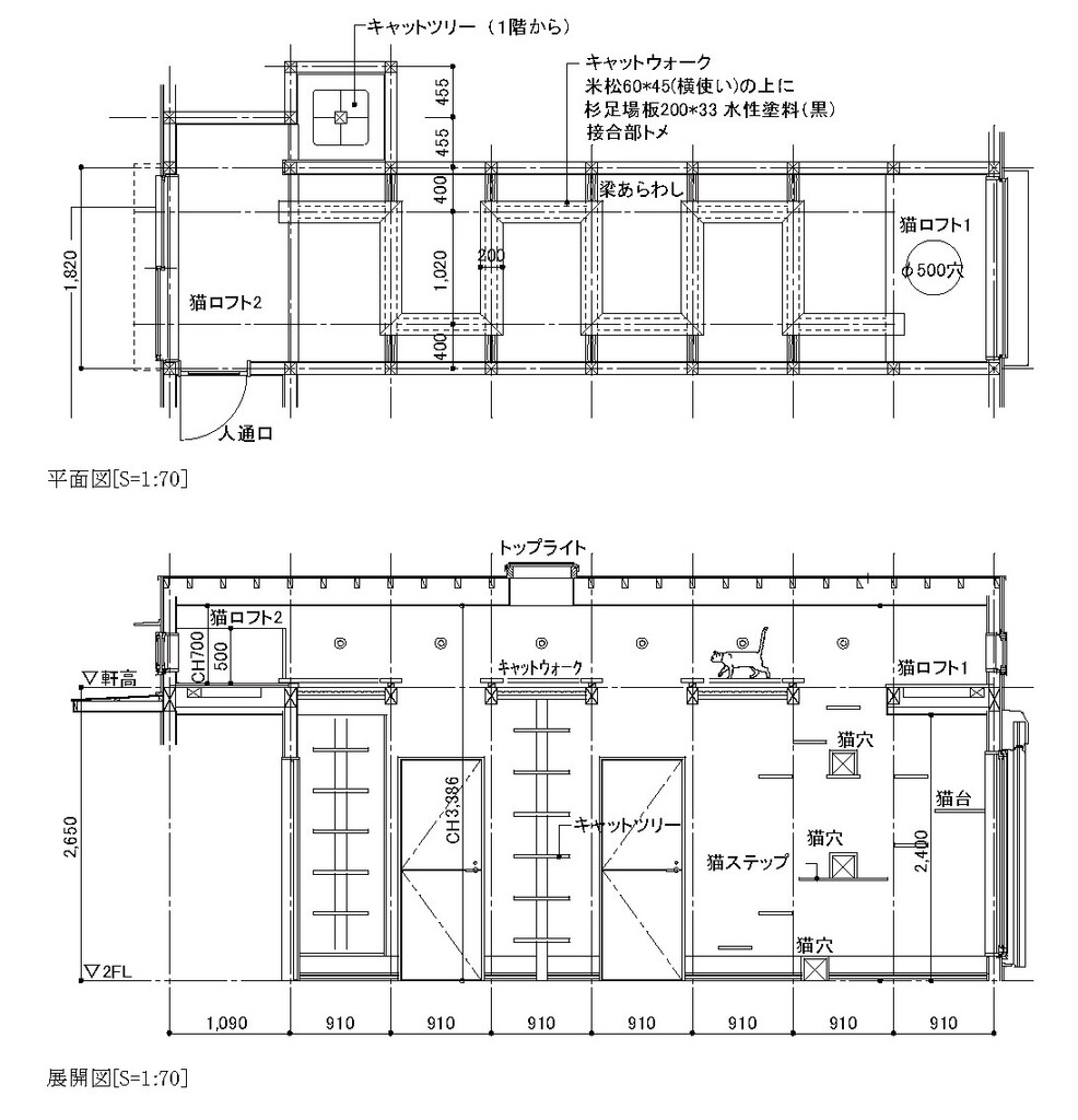
■キャットウォークは2階の小屋梁の上に、幅20cmの板をジグザグに配置して造っています。 上部には天窓が3つあったりして、結構、お昼寝の場所としても活用されています。

■黒い板の部分がキャットウォーク。全長10.5mあります。 大人の猫はルート通りに、ジグザグに歩きますが、 若い猫達は、平行になっている80cmの距離を余裕でジャンプしていきます。

■キャットウォークへは、 壁面から突き出た猫ステップ、階段手すりを利用した猫階段を使っても登れます。 その途中には外を眺めるための猫台や隣室へつながる猫穴などもあります。

■壁の向こうに側にある隣の部屋(GreenRoom)に出入りできる猫穴は何故か人気の場所なので、 猫ステップはこんなふうに時々渋滞します。

■猫穴からはいろんな子達が、かわりばんこに、顔だけを見せてくれます。

■キャットツリーは「階段」のはずなのですが、 人間が考えたそんな用途は猫達にはどうでもよくって、昼寝の場所として使うのはもちろんのこと、 写真のように監視台にしてみたり、支柱の部分を枕にして寝てみたり。。。

■キャットウォークの終着点となる東側猫ロフト。見晴らしがよくて陽当たりもいいので、ごろごろ寝ています。 こっそり覗きに行くと、びっくりするほどリラックスした状態の猫を見ることができます。

■猫ロフトは床掃除ができるようにメンテナンス穴が開いています。猫台や床の上でも猫達は遊んでいます。

■家の中に縦横無尽に張り巡らされた猫用通路を巡るThe Cats' Houseツアー(前半)の始まりです!
出発地は1Fにある「猫とくつろぐ部屋」に置かれた、キューブベッドの中から。

■キューブベッド用多段棚は、それ自体が階段状になっていて、 1階から2階へ上がるキャットツリーにつながっています。 ここからたくさんの猫達が、家の中での散歩に出かけていきます。

■このキャットツリーは、1階から2階、さらにロフトまで一気に上ったり下りたりできるように、高さは6mもあります。 それでは、キャットツリーの途中にある「秘密の入口」に入ってみましょう。

■秘密の入口は、書斎の壁沿いに作られた猫トンネルへの出入口。 書斎には、大切なレコード盤や本がいっぱいあるので、猫達は部屋の中に入れてもらえないかわりに、 猫トンネルを使って部屋の中を1周します。

■猫トンネルはガラス製なので 、猫達が歩く姿を見ることができます。 この部屋のラウンジチェアーは猫観察の特等席です。 何故ならこの他にも、愉快な仕掛けが、もう一つあるからです。

■ふと振り返ると、たくさんの猫達が先ほどのキャットツリーに座って、 ガラス越しに書斎の中に居る御主人を覗いています。興味津々のご様子。

■猫トンネルを進むと隣の部屋に通じています。 この猫専用の部屋は、壁紙が緑色なので「GreenRoom」と呼ばれています。 猫用の出入り口がたくさんあるため、 猫達が頻繁に訪れるにぎやかな小部屋になりました。

■「GreenRoom」は主寝室の窓際の一角に作られました。 窓より低い位置にある小さいキャットウォークは、「なんとなくイイ感じ」になっているらしくて、若い猫達のお気に入り。 端まで行くとPlayRoomへの「猫穴」につながっています。

■GreenRoomは不思議な部屋です。さっきまでいっぱい居たはずの猫達が、 気づかないうちに誰も居なくなって、何処へ行ったのか?と考えているうちに、あちこちから出没してきます。

■GreenRoomの壁に開けられた猫穴は3箇所。 PlayRoom側から見ると、白い壁面に猫ステップとともにリズミカルに並んでいます。 猫穴をくぐりぬけた猫達は、猫ステップを使って軽やかにPlayRoomに下りていきます。

■PlayRoomに到着しましたので「The Cats' Houseツアー」の前半は終了です。

■ここからは様々な猫用インテリアを御紹介しながら 「キャットウォーク」や「猫ロフト」などを巡るThe Cats' Houseツアー(後半)が始まります。 出発地は1階玄関ホール。[れん君]に2階へ案内してもらいましょう。

■ [れん君]の後を追いかけて階段を上ると、そこはPlayRoomです。 [れん君]がやってきたのを見て、[かい君]が手すり壁の猫階段を登って行きました。

■PlayRoomに一歩足を踏み入れると、いろんなところから猫達が挨拶をしに来てくれます。 [こはるちゃん]がこっちに来ようとしている時に、 [ちなつちゃん]が強引に猫穴をくぐってGreenRoomからわざわざ会いに来てくれました。

■ 運が良ければ、キャットツリーに猫たちが鈴なりになって出迎えてくれます。
これぞまさにキャットツリー。猫たちは上から順番に[かい][ちなつ][たま][まる][れん]です。

■「あれ?今日は[まりこ]が居ないなぁ。。。」と思っていたら、 こんな高い所からこっちを見ていました。東側の猫ロフトからです。 さっき[れん君]に連れられて上ってきた人間用階段の真上にあります。

■ PlayRoomの上空に張り巡らされているキャットウォークに行くには、 猫用らせん階段「キャットツリー」を使います。段差が33cm~43cmのものまで4本用意されています。 [ちなつちゃん]は段差43cmのものがお気に入り。

■ 再び[れん君]に登場してもらってキャットツリーの登り方を見せてもらいましょう。 1/4だけカットされた正方形の板が90度ずつ回転しながら支柱に固定されているので、猫も回転しながら登ります。

■ [れん君]が、猫ロフトを目指して歩いていきます。 この家のキャットウォークはジグザグになっているので、猫はゆっくりと歩き、目の前を数回横切ってくれます。

■キャットウォークには先客がいたようです。 手前から[しろみ][ちなつ][はな]。 奥にある猫ロフトを目指していたはずの[れん君]は、猫ロフトへ到着する前に何故か途中で寝てしまいました。

■東側猫ロフトから撮影したちょっとカッコいい写真。[ちなつちゃん]が下の様子を窺いながら前へ進んでいきます。

■西側猫ロフトの両サイドには出入り口があります。向かって左側が、2階の洋室にある屋根裏部屋からの出入り口。 右側は1階からのキャットツリーへ続きます。そこから下を覗くとこんな感じ。[れん君]が登ってきました。

■東側猫ロフトの床には、床掃除をするために直径50cmの穴が開いています。 [ちなつちゃん]が穴を避けてキャットウォークに行こうとしている横で[まる君]がずっと爆睡しています。 ちなみに[ちなつちゃん]は男子です。

■「The Cats' Houseツアー」の締めくくりとして、人には行けない猫ロフトにちょっとおじゃまして、 床に開けられた穴から猫になった気分で下を覗いてみましょう。 ちょうどこのツアーの5番目で[まりこ]が私たちを見ていたように。。。

■ 回遊性を持つ猫専用動線に、唯一含まれていない猫スポットが1階にはあります。 通称「ある君の部屋」。しかし居心地が良いせいか、結局、[ある君]専用スペースにはなりませんでした。

■ 2階の洋室には、あまり犬や猫を入れないことになっているのですが、ドアが空いているとやはり入ってきて、 猫たちはいろいろと探検していきます。[かい君]が頭上高く飛んでいます。

■ ガラス越しに[さくら]と[あい]がご対面。(2匹ともこっちを見てますけど。。。) 家の中が混乱するのを避けるために、犬と猫はゾーニングしています。 写真に写っているのは上下分割ドア。下だけ閉めるとドッグフェンスにもなる優れもの。

■ 2階の洋室には屋上庭園(ドッグラン)が併設されています。 そこで自由に走り回る5匹の犬達の様子を猫達はロフトにある窓越しに見ていたりします。

■ こんなふうにね。

■この麻縄を巻いた柱は猫の爪とぎ用に造られました。時々、木登り大会が行われます。 ちなみに16匹の猫達は、この「爪とぎ柱」でしか爪を研ぎません。 ドア枠を傷つけたり、壁紙を破ったりなんて事はしません。

■ 最後になりましたので、こんな写真を。 タイトル「電球と肉球」
“The Cats’ House”
Despite the size of the animal-loving population out there, it’s odd that you seldom hear of houses being built expressly with the creature comforts of pets in mind. “The Cats’ House,” designed by Keiji Hirose of the Japanese architecture firm Fauna+DeSIGN, is one such a property. Mr Hirose has employed his skills both as an architect and a qualified animal handler to the full to create a dream home for people and their better (animal) halves.
I was lucky enough to have the opportunity to visit “the Cats’ House” in the autumn of 2009. The feature that I found most striking was the myriad cat steps, pathways and tunnels, both high and low, that run throughout the entire two storeys. This network of cat passages represents the pinnacle of good design, combining utility, style and a generous sprinkling of fun.

The centrepiece is a zigzagging “cat walk” that soars over the central landing at ceiling height—a wonderful way to show off the house’s cat inhabitants, who come in all coats and colours and love to laze around on high. In animal terms, Mr. Hirose says that these passages give the cats “vertical” exercise, as well as roaming space. The latter is important in a property with so many animals living in close proximity. After all, cats do have their hierarchies, and having enough space to disperse allows weaker members to keep out of the way of more dominant members, or even to hide from them. The theory is that this results in fewer fights, and a chat with the gloating owners of the house confirms that this is indeed the case, making for much less stress all around.
Other features of the house are similarly stylish and functional: a basin at floor-height that is constantly filled with fresh drinking water; and partitions made of acrylic piping, which keep the cats out of certain areas while keeping them in view.
Overall the house is comfortable and fashionable, and judging by how well the sixteen cats seem to be settling in, it is clearly a hit with the residents. One can already foresee that the demand for such concept houses will increase in the future, and the time may well come when an ordinary human-centric house will be considered unsuitable for any serious cat-lover.
[Dominic Young] TV Program Creator