犬と暮らす家

散歩だけではもの足りなくて、エネルギーが有り余ってしまっている犬が、そのエネルギーを発散できないまま一日を終えてしまうと、いろんな問題が家庭内で起きてしまいます。シニア犬なら穏やかな日々が過ごせるようにさえ考えればいいのですが、うちのアリスはこの記事を書いている今、ちょうど5歳です。遊びたくてしかたがありません。雨でも外で遊べる雨天屋外運動場とマイ・ドッグランは設計条件の中に初めから入っていました。
しかし、一般の住宅の敷地でドッグランを作るには、かなりの広さと安全のための柵が必要です。家庭用ドッグラン整備のよくある失敗事例として、①柵の下から犬が潜り抜けて逃亡してしまうケース、②駐車場を経由して道路に逃亡してしまうケース、③ドッグランからこちらに近づいてくる他者が見えてしまうために吠えてしまうケースなどがあります。この①②③をすべてクリアできるようなエクステリア工事をするのはなかなか大変です。そして、雨天屋外運動場も必要となると、もう1軒家を建てるような予算規模になってしまいます。
それで、私は①②③のありがちな失敗を避けつつ、雨天屋外運動場も合理的に創るために、特殊な敷地を探すことにしました。
これがその特殊な土地で計画した地盤面位置の平面図と断面図です。犬が逃亡するような事故がおきないことを読み取って頂けると思います。庭と道路が繋がっていないのですから、ドッグランのある庭から犬の逃亡が起きるはずがありません。


あまり普通の家にはないものですが、鉄骨造で人工地盤を造り、土を60cm入れて樹木も植えています。道路になじんでいるので、一見するとそれが空中に浮いているようには見えないと思います。


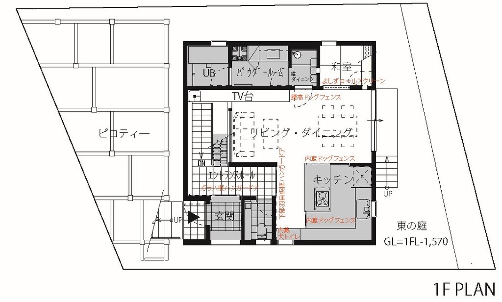
アリスは窓から外をよく見ていますが、よくある近隣トラブルの例のように、人やバイクが目の前を通るたびに吠えたりすることはありません。なぜなら見える景色の先には人間の姿や社会性の刺激がないからです。過去のコラムで犬の家を設計するときには外部からの刺激を無くす方がよいと書きました。しかし犬にとって心地よい刺激であれば、たくさん取り入れてあげたいものです。改めて1階の平面図を見ていただければわかりますが、1階の道路側には全く窓を設けていません。そのようにして設計で住宅の中に入ってくる刺激をコントロールしているのです。

part2はここまで(2022.08.09)
→part3に続く
犬と暮らす家・猫と暮らす家の専門家による自邸の解説(猫編)は以下のリンクから